※ 三螺桿泵性能曲線圖
|
各型螺桿泵的性能參數,是在介質粘度為75cst時的確定的。性能參數表中給出的參數值適用于介質粘度為3-760cst范圍內,超出這個范圍則根據用戶提出的性能參數要求另行確定。 |
|
※ 三螺桿泵結構圖
|
|
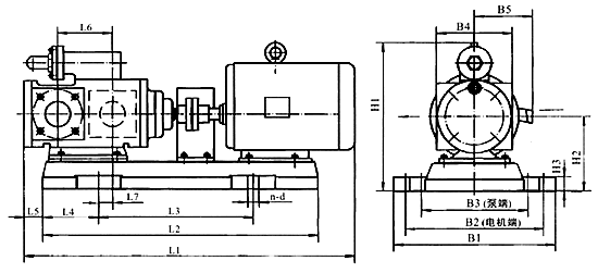
3G30×4外形及安裝尺寸
|
|
泵型號 |
機座號 |
L1 | L2 | L3 | L4 | L5 | L6 | L7 | B1 | B2 | B3 | B4 | H1 | H2 | H3 | n-d | D1×G1 | D2×G2 |
| 30×4 | 90L | 665 | 383 | 95 | 35 | 82 | 138 | 250 | 210 | 160 | 155 | 274 | 140 | 15 | 4-φ14 | φ32×φ44 | φ25×φ34 | |
| 100L | 703 | 393 | 95 | 40 | 87 | 138 | 250 | 210 | 160 | 180 | 274 | 140 | 15 | 4-φ14 | φ32×φ44 | φ25×φ34 | ||
| 112M | 729 | 391 | 95 | 40 | 87 | 138 | 250 | 210 | 160 | 190 | 274 | 140 | 15 | 4-φ14 | φ32×φ44 | φ25×φ34 |
3G25×4、3G36×4外形及安裝尺寸
|
|
泵型號
|
機座號
|
L1
|
L2
|
L3
|
L4
|
L5
|
L6
|
L7
|
B1
|
B2
|
B3
|
B4
|
H1
|
H2
|
H3
|
n-d
|
D1×G1
|
D2×G2
|
|
25×4
|
80
90S 90L 100L |
583
608 643 665 |
340
380 380 415 |
200
250 250 265 |
70
65 65 75 |
29
29 29 29 |
125
125 125 125 |
95.5
90.5 90.5 101.5 |
280
280 280 305 |
240
240 240 265 |
240
240 240 265 |
150
160 160 160 |
255
265 265 315 |
160
160 160 170 |
20
20 20 20 |
4-φ15
4-φ15 4-φ15 |
φ25×φ34
φ25×φ34 φ25×φ34 |
φ20×φ34
φ20×φ34 φ20×φ34 |
|
36×4
|
100L
112M 132S |
770
790 865 |
438
438 518 |
298
298 368 |
70
70 75 |
44
44 44 |
168
168 168 |
112
117 117 |
330
350 380 |
290
310 340 |
290
310 340 |
180
190 210 |
337
345 375 |
192
192 192 |
20
20 20 |
4-φ19
4-φ19 4-φ19 |
φ50×φ59
φ50×φ59 φ50×φ59 |
φ40×φ50
φ40×φ50 φ40×φ50 |
3G42×4外形及安裝尺寸
|
|
泵型號 |
機座號 |
L1 | L2 | L3 | L4 | L5 | L6 | L7 | B1 | B2 | B3 | B4 | B5 | H1 | H2 | H3 | n-d |
| 42×4 |
112M 132S 160M |
840 917 1043 |
725 765 890 |
420 460 590 |
150 150 150 |
41 41 41 |
158 158 158 |
50 50 50 |
410 450 480 |
350 390 420 |
270 270 270 |
176 176 176 |
190 210 265 |
343 385 455 |
190 202 230 |
35 35 35 |
4-φ25 4-φ25 4-φ25 |
| 泵型號 | D1 | F1 | G1×G1 | n1-M1 | D2 | F2 | G2×G2 | n2-M2 |
| 42×4 | 65 | 130 | 128×128 | 4-M12 | φ40 | φ108 | 118×118 | 4-M16 |
3G45-100×2外形及安裝尺寸
|
|
泵型號
|
機座號
|
L1
|
L2
|
L3
|
L4
|
L5
|
L6
|
B1
|
B2
|
B3
|
B4
|
B5
|
B6
|
H1
|
H2
|
H3
|
n-d
|
|
45×4
|
Y100L
Y132S Y132M Y160M |
890
985 1025 1119 |
740
809 838 932 |
472
518 538 610 |
145
145 145 160 |
209
209 209 209 |
85
85 85 73.5 |
325
380 380 429 |
285
340 340 389 |
285
340 340 340 |
130
130 130 130 |
140
140 140 140 |
180
210 210 265 |
350
400 400 470 |
205
217 217 245 |
25
25 25 25 |
4-φ18
4-φ18 4-φ18 4-φ18 |
|
60×4
|
Y160M
Y160L Y200L |
1297
1342 1475 |
1017
1061 1157.5 |
700
700 757.5 |
178
178 183 |
285
285 285 |
100
100 100 |
460
460 525 |
410
410 475 |
370
370 370 |
170
170 170 |
175
175 175 |
265
265 310 |
585
585 585 |
270
270 310 |
30
30 30 |
4-φ23
4-φ23 4-φ23 |
|
70×2
|
Y132M
Y160M |
1199
1289 |
930
1012 |
587
652 |
159
160 |
165
165 |
71
71 |
420
465 |
380
425 |
380
380 |
170
170 |
170
170 |
210
265 |
458
500 |
275
275 |
30
30 |
4-φ23
4-φ23 |
|
70×4
|
Y180M
Y200L |
1404
1509 |
1199
1277 |
780.5
795 |
230.5
230.5 |
305
305 |
145
145 |
495
540 |
455
500 |
380
380 |
170
170 |
170
170 |
285
310 |
540
585 |
290
310 |
30
35 |
4-φ23
4-φ23 |
|
80×2
|
Y160M
Y180M |
1244
1308 |
1043
1092 |
663
707 |
165
165 |
204
204 |
110
110 |
470
480 |
430
440 |
430
440 |
190
190 |
190
190 |
265
285 |
505
540 |
280
290 |
30
30 |
4-φ23
4-φ23 |
|
80×4
|
Y200L
Y225M |
1570
1640 |
1241
1297 |
826
875 |
204
204 |
360
360 |
145
145 |
525
580 |
475
530 |
410
410 |
190
190 |
190
190 |
315
345 |
585
640 |
310
335 |
30
30 |
4-φ23
4-φ23 |
|
100×2
|
Y
180LY225S |
1513
1623 |
1265
1336 |
821
865 |
195
195 |
254
254 |
140
140 |
520
595 |
460
535 |
460
460 |
220
220 |
220
220 |
285
345 |
580
640 |
330
335 |
30
30 |
4-φ23
4-φ23 |
3G100×4外形及安裝尺寸
|
|
|
|
地腳螺栓孔尺寸 |
進出口法蘭尺寸 |
|
|
|
泵型號 |
機座號 |
L1 | L2 | L3 | L4 | L5 | L6 | L7 | B1 | B2 | B3 | B4 | B5 | B6 | B7 | H1 | H2 | H3 | n-d |
| 100×4 |
Y250M-4 Y280S-4 |
1993 2043 |
1590 1659 |
506 548 |
507 549 |
262 262 |
233 233 |
444 444 |
650 705 |
520 520 |
590 645 |
460 460 |
220 220 |
220 220 |
385 410 |
685 750 |
360 390 |
30 30 |
6
-φ27 6-φ27 |
| 泵型號 | D1 | E1 | F1 | G1 | n1-d1 | D2 | E2 | F2 | G2 | n2-d2 |
| 45×4 | φ65 | φ110 | φ130 | φ160 | 4-φ13.5 | φ50 | φ102 | φ125 | φ165 | 4-φ17.5 |
| 60×4 | φ100 | φ148 | φ170 | φ210 | 4-φ17.5 | φ65 | φ122 | φ145 | φ185 | 8-φ17.5 |
| 70×2 | φ100 | φ140 | φ170 | φ205 | 8-φ18 | φ65 | φ120 | φ145 | φ180 | 8-φ18 |
| 70×4 | φ100 | φ140 | φ170 | φ205 | 8-φ18 | φ65 | φ120 | φ145 | φ180 | 8-φ18 |
| 80×2 | φ125 | φ175 | φ200 | φ235 | 8-φ18 | φ80 | φ135 | φ160 | φ195 | 8-φ18 |
| 80×4 | φ125 | φ175 | φ200 | φ235 | 8-φ18 | φ80 | φ135 | φ160 | φ195 | 8-φ18 |
| 100×2 | φ150 | φ215 | φ240 | φ275 | 8-φ18 | φ100 | φ170 | φ200 | φ235 | 8-φ18 |
| 100×4 | φ150 | φ215 | φ240 | φ275 | 8-φ18 | φ100 | φ170 | φ200 | φ235 | 8-φ1 |

冀公網安備13098102000109號